de

Dokumentationen - Zeichnungen

Unsere Dokumentenbibliothek enthält alle wesentlichen Dokumente für alle Belangen im Tür- und Torbereich. Damit gewisse Dokumente (wie zum Beispiel Zeichnungen) betrachtet und benutzt werden können, bitten wir Sie sich einmalig zu registrieren.

Produkt
Ansicht
Tür-Ausführungen
Tür-Antriebshöhe
Tür-Oberlicht
Tür-Seitenteil
Tür-Verglasung
Sprache
Suchbegriff

Verwenden Sie den Stern * als Platzhalter in Suchbegriffen um mehr Treffer zu erhalten.

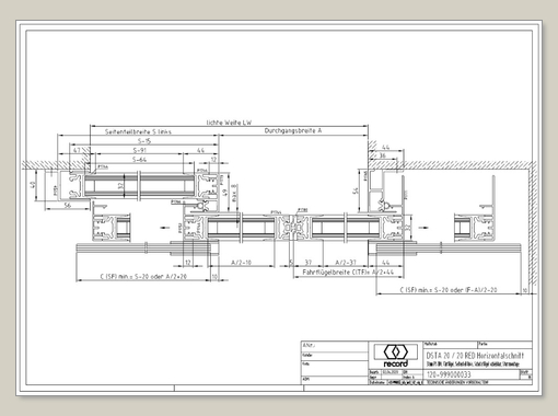
System 20 STA Schiebetür mit ESG Glas mit Seitenteilen
System 20 STA Schiebetür mit ESG Glas mit Seitenteilen

Horizontalschnitt 2-flügelig Antrieb / Türflügel 
Profilsystem: 20mm, Verglasung: max. 10mm
Schutzflügel schiebbar
Türflügel Nebenschließkante mit Gummi-Abschluss

DXF | DE
A120-999000044
öffnen
System 20 STA Schiebetür mit ESG Glas mit Seitenteilen
System 20 STA Schiebetür mit ESG Glas mit Seitenteilen

Horizontalschnitt 2-flügelig Antrieb / Türflügel 
Profilsystem: 20mm, Verglasung: max. 10mm
Schutzflügel schiebbar
Türflügel Nebenschließkante mit Alu-Abschluss

DXF | DE
A120-999000045
öffnen
System 20 STA Schiebetür mit ESG Glas mit Seitenteilen
System 20 STA Schiebetür mit ESG Glas mit Seitenteilen

Horizontalschnitt 2-flügelig Antrieb / Türflügel 
Profilsystem: 20mm, Verglasung: max. 10mm
Schutzflügel schiebbar
Türflügel Nebenschließkante mit Gummi-Abschluss

DXF | DE
A120-999000046
öffnen
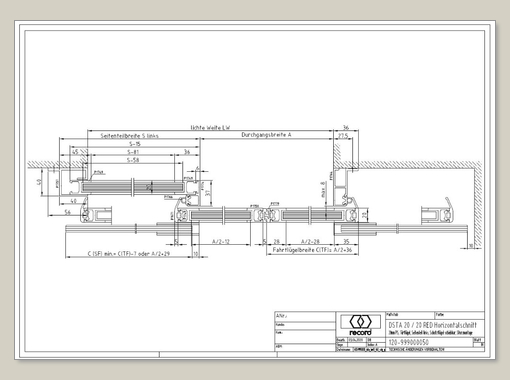
System 20 STA Schiebetür mit ESG Glas mit Seitenteil links
System 20 STA Schiebetür mit ESG Glas mit Seitenteil links

Horizontalschnitt 2-flügelig Antrieb / Türflügel 
Profilsystem: 20mm, Verglasung: max. 10mm
Schutzflügel schiebbar
Türflügel Nebenschließkante mit Alu-Abschluss

DXF | DE
A120-999000047
öffnen
System 20 STA Schiebetür mit ESG Glas mit Seitenteil links
System 20 STA Schiebetür mit ESG Glas mit Seitenteil links

Horizontalschnitt 2-flügelig Antrieb / Türflügel 
Profilsystem: 20mm, Verglasung: max. 10mm
Schutzflügel schiebbar
Türflügel Nebenschließkante mit Gummi-Abschluss

DXF | DE
A120-999000048
öffnen
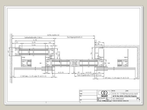
System 20 STA Schiebetür mit ESG Glas mit Seitenteil links
System 20 STA Schiebetür mit ESG Glas mit Seitenteil links

Horizontalschnitt 2-flügelig Antrieb / Türflügel 
Profilsystem: 20mm, Verglasung: max. 10mm
Schutzflügel schiebbar
Türflügel Nebenschließkante mit Alu-Abschluss

DXF | DE
A120-999000049
öffnen
System 20 STA Schiebetür mit ESG Glas mit Seitenteil links
System 20 STA Schiebetür mit ESG Glas mit Seitenteil links

Horizontalschnitt 2-flügelig Antrieb / Türflügel 
Profilsystem: 20mm, Verglasung: max. 10mm
Schutzflügel schiebbar
Türflügel Nebenschließkante mit Gummi-Abschluss

DXF | DE
A120-999000050
öffnen
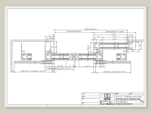
System 20 STA Schiebetür mit ESG Glas mit Seitenteil rechts
System 20 STA Schiebetür mit ESG Glas mit Seitenteil rechts

Horizontalschnitt 2-flügelig Antrieb / Türflügel 
Profilsystem: 20mm, Verglasung: max. 10mm
Schutzflügel schiebbar
Türflügel Nebenschließkante mit Alu-Abschluss

DXF | DE
A120-999000051
öffnen
System 20 STA Schiebetür mit ESG Glas mit Seitenteil rechts
System 20 STA Schiebetür mit ESG Glas mit Seitenteil rechts

Horizontalschnitt 2-flügelig Antrieb / Türflügel 
Profilsystem: 20mm, Verglasung: max. 10mm
Schutzflügel schiebbar
Türflügel Nebenschließkante mit Gummi-Abschluss

DXF | DE
A120-999000052
öffnen
System 20 STA Schiebetür mit ESG Glas mit Seitenteil  rechts
System 20 STA Schiebetür mit ESG Glas mit Seitenteil rechts

Horizontalschnitt 2-flügelig Antrieb / Türflügel 
Profilsystem: 20mm, Verglasung: max. 10mm
Schutzflügel schiebbar
Türflügel Nebenschließkante mit Alu-Abschluss

DXF | DE
A120-999000053
öffnen
System 20 STA Schiebetür mit ESG Glas mit Seitenteil rechts
System 20 STA Schiebetür mit ESG Glas mit Seitenteil rechts

Horizontalschnitt 2-flügelig Antrieb / Türflügel 
Profilsystem: 20mm, Verglasung: max. 10mm
Schutzflügel schiebbar
Türflügel Nebenschließkante mit Gummi-Abschluss

DXF | DE
A120-999000054
öffnen
System 20 STA Schiebetür mit ESG Glas ohne Seitenteile
System 20 STA Schiebetür mit ESG Glas ohne Seitenteile

Horizontalschnitt 2-flügelig Antrieb / Türflügel 
Profilsystem: 20mm, Verglasung: max. 10mm
Schutzflügel schiebbar
Türflügel Nebenschließkante mit Alu-Abschluss

DXF | DE
A120-999000039
öffnen
System 20 STA Schiebetür mit ESG Glas ohne Seitenteile
System 20 STA Schiebetür mit ESG Glas ohne Seitenteile

Horizontalschnitt 2-flügelig Antrieb / Türflügel 
Profilsystem: 20mm, Verglasung: max. 10mm
Schutzflügel schiebbar
Türflügel Nebenschließkante mit Gummi-Abschluss

DXF | DE
A120-999000040
öffnen
System 20 STA Schiebetür mit ESG Glas ohne Seitenteile
System 20 STA Schiebetür mit ESG Glas ohne Seitenteile

Horizontalschnitt 2-flügelig Antrieb / Türflügel 
Profilsystem: 20mm, Verglasung: max. 10mm
Schutzflügel schiebbar
Türflügel Nebenschließkante mit Alu-Abschluss, Blende

DXF | DE
A120-999000041
öffnen
System 20 STA Schiebetür mit ESG Glas ohne Seitenteile
System 20 STA Schiebetür mit ESG Glas ohne Seitenteile

Horizontalschnitt 2-flügelig Antrieb / Türflügel 
Profilsystem: 20mm, Verglasung: max. 10mm
Schutzflügel schiebbar
Türflügel Nebenschließkante mit Gummi-Abschluss, Blende

DXF | DE
A120-999000042
öffnen
System 20 STA Schiebetür mit ESG Glas mit Seitenteilen
System 20 STA Schiebetür mit ESG Glas mit Seitenteilen

Horizontalschnitt 2-flügelig Antrieb / Türflügel 
Profilsystem: 20mm, Verglasung: max. 10mm
Schutzflügel schiebbar
Türflügel Nebenschließkante mit Alu-Abschluss

DXF | DE
A120-999000043
öffnen
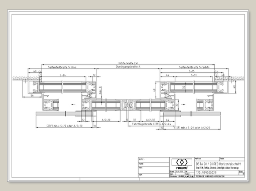
System 20 STA Schiebetür mit ISO Glas mit Seitenteilen
System 20 STA Schiebetür mit ISO Glas mit Seitenteilen

Horizontalschnitt 2-flügelig Antrieb / Türflügel 
Profilsystem: 32mm, Verglasung: max. 24mm
Schutzflügel schiebbar
Türflügel Nebenschließkante mit Gummi-Abschluss

DXF | DE
A120-999000028
öffnen
System 20 STA Schiebetür mit ISO Glas mit Seitenteilen
System 20 STA Schiebetür mit ISO Glas mit Seitenteilen

Horizontalschnitt 2-flügelig Antrieb / Türflügel 
Profilsystem: 32mm, Verglasung: max. 24mm
Schutzflügel schiebbar
Türflügel Nebenschließkante mit Alu-Abschluss

DXF | DE
A120-999000029
öffnen
System 20 STA Schiebetür mit ISO Glas mit Seitenteilen
System 20 STA Schiebetür mit ISO Glas mit Seitenteilen

Horizontalschnitt 2-flügelig Antrieb / Türflügel 
Profilsystem: 32mm, Verglasung: max. 24mm
Schutzflügel schiebbar
Türflügel Nebenschließkante mit Gummi-Abschluss

DXF | DE
A120-999000030
öffnen
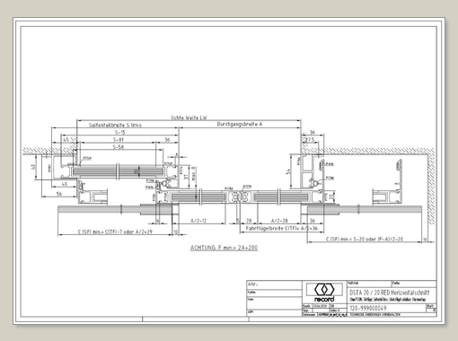
System 20 STA Schiebetür mit ISO Glas mit Seitenteil links
System 20 STA Schiebetür mit ISO Glas mit Seitenteil links

Horizontalschnitt 2-flügelig Antrieb / Türflügel 
Profilsystem: 32mm, Verglasung: max. 24mm
Schutzflügel schiebbar
Türflügel Nebenschließkante mit Alu-Abschluss

DXF | DE
A120-999000031
öffnen
System 20 STA Schiebetür mit ISO Glas mit Seitenteil links
System 20 STA Schiebetür mit ISO Glas mit Seitenteil links

Horizontalschnitt 2-flügelig Antrieb / Türflügel 
Profilsystem: 32mm, Verglasung: max. 24mm
Schutzflügel schiebbar
Türflügel Nebenschließkante mit Gummi-Abschluss

DXF | DE
A120-999000032
öffnen
System 20 STA Schiebetür mit ISO Glas mit Seitenteil links
System 20 STA Schiebetür mit ISO Glas mit Seitenteil links

Horizontalschnitt 2-flügelig Antrieb / Türflügel 
Profilsystem: 32mm, Verglasung: max. 24mm
Schutzflügel schiebbar
Türflügel Nebenschließkante mit Alu-Abschluss

DXF | DE
A120-999000033
öffnen
System 20 STA Schiebetür mit ISO Glas mit Seitenteil links
System 20 STA Schiebetür mit ISO Glas mit Seitenteil links

Horizontalschnitt 2-flügelig Antrieb / Türflügel 
Profilsystem: 32mm, Verglasung: max. 24mm
Schutzflügel schiebbar
Türflügel Nebenschließkante mit Gummi-Abschluss

DXF | DE
A120-999000034
öffnen
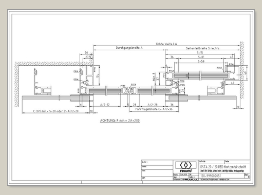
System 20 STA Schiebetür mit ISO Glas mit Seitenteil rechts
System 20 STA Schiebetür mit ISO Glas mit Seitenteil rechts

Horizontalschnitt 2-flügelig Antrieb / Türflügel 
Profilsystem: 32mm, Verglasung: max. 24mm
Schutzflügel schiebbar
Türflügel Nebenschließkante mit Alu-Abschluss

DXF | DE
A120-999000035
öffnen
System 20 STA Schiebetür mit ISO Glas mit Seitenteil rechts
System 20 STA Schiebetür mit ISO Glas mit Seitenteil rechts

Horizontalschnitt 2-flügelig Antrieb / Türflügel 
Profilsystem: 32mm, Verglasung: max. 24mm
Schutzflügel schiebbar
Türflügel Nebenschließkante mit Gummi-Abschluss

DXF | DE
A120-999000036
öffnen
System 20 STA Schiebetür mit ISO Glas mit Seitenteil rechts
System 20 STA Schiebetür mit ISO Glas mit Seitenteil rechts

Horizontalschnitt 2-flügelig Antrieb / Türflügel 
Profilsystem: 32mm, Verglasung: max. 24mm
Schutzflügel schiebbar
Türflügel Nebenschließkante mit Alu-Abschluss

DXF | DE
A120-999000037
öffnen
System 20 STA Schiebetür mit ISO Glas mit Seitenteil rechts
System 20 STA Schiebetür mit ISO Glas mit Seitenteil rechts

Horizontalschnitt 2-flügelig Antrieb / Türflügel 
Profilsystem: 32mm, Verglasung: max. 24mm
Schutzflügel schiebbar
Türflügel Nebenschließkante mit Gummi-Abschluss

DXF | DE
A120-999000038
öffnen
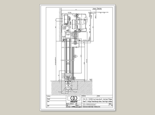
System 20 STA Schiebetür mit ISO Glas ohne Seitenteil
System 20 STA Schiebetür mit ISO Glas ohne Seitenteil

Vertikalschnitt nur Türflügel mit Bodenführungsschiene
Profilsystem: 32mm, Verglasung: max. 24mm
Aufklappbare Antriebsverkleidung 150mm
Schutzflügel schiebbar 

DXF | DE
A120-999000067
öffnen
System 20 STA Schiebetür mit ISO Glas ohne Seitenteil
System 20 STA Schiebetür mit ISO Glas ohne Seitenteil

Vertikalschnitt nur Türflügel mit Bodenführungsschiene
Profilsystem: 32mm, Verglasung: max. 24mm
Aufklappbare Antriebsverkleidung 200mm
Schutzflügel schiebbar 

DXF | DE
A120-999000072
öffnen
System 20 STA Schiebetür mit ISO Glas ohne Seitenteil
System 20 STA Schiebetür mit ISO Glas ohne Seitenteil

Vertikalschnitt nur Türflügel mit Türblattführung
Profilsystem: 32mm, Verglasung: max. 24mm
Aufklappbare Antriebsverkleidung 200mm
Schutzflügel schiebbar 

DXF | DE
A120-999000062
öffnen
Loading...